....Neubau eines Wohnhauses in Holzbauweise

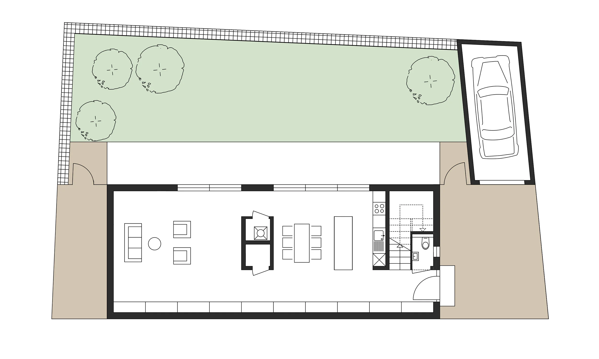
In dem 2008 für eine 3-köpfige Familie fertiggestellten Haus wird trotz kompakter Bauweise ein großzügiges Raumgefühl vermittelt. Das Haus ist nicht unterkellert und in Holzbauweise errichtet, aus Kostengründen wurde auf einen Keller verzichtet. Auf der zur Straße gewandten Längsseite des Hauses sind in beiden Geschossen über die gesamte Länge Einbauschränke montiert, die zur Unterbringung der Haustechnik, als Stauraum, Bücherregal und Wohnwand dienen.

Das Gebäude fügt sich mit seinem Satteldach aufgrund seiner ortstypischen Typologie in den bestehenden dörflichen Kontext ein, sticht aber gleichzeitig durch den an der Gebäudehülle durchdetaillierten Minimalismus wie z.B. der Verzicht auf Dachüberstände und die Ausführung einer innenliegenden Dachentwässerung aus der Umgebung heraus.

..

New timber construction of a residential building

The house, completed in 2008 for a family of three, conveys a generous sense of space despite its compact design. The house is not built on a basement and in timber construction, for cost reasons was built with a cellar. On the long side of the house facing the street, fitted wardrobes are installed on both floors over the entire length, which serve to house the building services, as a storage space, bookshelf and living area.

The building, with its pitched roof, fits into the existing village context due to its typical typology, but at the same time it stands out for its minimalism, such as the minimalist detailing of the building envelope. The abandonment of roof overhangs the internal roof drainage.

....